.

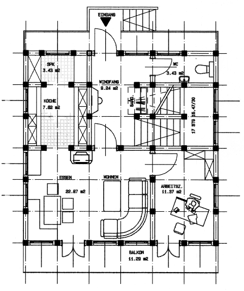
Einfamilienhaus im Landhaus-Stil, Grundriss Erdgeschoss

Einfamilienhaus im Landhausstil, Erdgeschoss
Über eine Außentreppe an der Nordseite gelangt man zur Haustüre, und von dort in einen Windfang mit Garderobe und das Treppenhaus. Daneben befinden sich ein WC. Die Türe links öffnet sich zum Wohnraum. Dieser hat eine Ess-Ecke mit einem soliden Tisch mit Holzplatte, dazu eine Eckbank und 3 Stühle (Essplatz, auch mit Gästen, und Hausarbeitsplatz). Außerdem hat er eine bequeme Sitzecke für Gespräche und zum Fernsehen. Das Fernsehgerät kann von beiden Bereichen aus gesehen werden. Dieser Raum hat 4 Fenster und eine verglaste Zweiflügeltüre zum großen, gegen Regen geschützten Balkon an der Südseite des Hauses. Nahe beim Essplatz befindet sich die eventuell durch eine Falt- oder Schiebetüre abtrennbare, zum Wohnraum hin offene, komfortable Küche mit Oberschränken, Kühlschrank, Herd, Backofen, Geschirrwaschmaschine, und einem Platz zum Arbeiten im Sitzen mit Ausblick ins Freie. Die Küche besitzt eine im Ganzen gekühlte Speisekammer, in welcher sich Vegetabilien und Früchte länger frisch halten. Vom Wohnraum aus geht es in ein Büro, welches ebenfalls durch eine verglaste Zweiflügeltüre Zugang zum großen Balkon hat. Gut zu erkennen ist das Raster dieses Bausystems, und die Gliederung der Wände in Stütz- und Wand-Elemente. Letztere enthalten teils Türen oder Fenster. Weiter zum Obergeschoss.
.
Friedrichshafen, im Jahr 2003,   Dr. Johann Georg Schnitzer
© Copyright 1998-2003 (ganze Site) by Dr. J. G. Schnitzer, D-88045 Friedrichshafen, Germany

Eingangsseite der Site (Index)
Eingangsseite

Inhaltsübersicht + Einführung
Deutsche Einführung

1 Seite zurück (Führung durch die Site)
Seite vorher

1 Seite weiter (Führung durch die Site)
Nächste Seite

E-Mail an Dr. Schnitzer
Mail an Dr. Schnitzer

Gesundheits-Suchmaschine + Linkliste
Gesundheits-Suchmaschine und Link-Liste aller Seiten

Zur Übersichtsseite des Bausystems
Übersicht Bausystem
Übersicht Einfamilienhaus

Zum vorangegangenen ThemaZum vorangegangenen Thema
Thema vorher

Zum nächsten ThemaZum nächsten Thema
Nächstes Thema

Zur Bücher-Bestellseite
Bücher normal bestellen
SSL verschlüsselt bestellen